La delegada de Salud entrega al alcalde de Pizarra la notificación por la que se comunica la subvención para las obras de ampliación del consultorio

20/09/2009 .- www.malagaes.eu

La Delegación Provincial de Salud ha concedido al Ayuntamiento de Pizarra una subvención, por valor de 43.000 euros, destinada íntegramente al proyecto y dirección de obra de la ampliación del consultorio de la localidad, que con un presupuesto de 380.000 euros, se ejecuta con cargo del Fondo Estatal de Inversión Local.


Obras Proyectadas y dirigidas por ARQUISURLAURO S.L.P.

La delegada de Salud, María Antigua Escalera, y el alcalde de Pizarra, Francisco J. Vargas, han firmado hoy este acuerdo, con el objetivo de ampliar el área de Urgencias del centro, situada en la planta baja del edificio, y la habilitación de dependencias municipales, que se ubicarían en la planta alta. El consultorio, que pertenece a la Unidad de Gestión Clínica de Cártama, atiende a una población de 8.652 habitantes, pertenecientes al municipio de Pizarra y a los núcleos de Zalea y Cerralba.

Con la ejecución de este obra, el área de urgencias contará con tres consultas estándar, (una más que en la actualidad) y el consultorio incrementará su superficie construida en 231,58 metros cuadrados, por lo que pasará a tener 657,33 metros cuadrados.

El centro, con una superficie actual de 425,75 metros cuadrados, cuenta con cuatro consultas estándar, una de enfermería y otra para extracciones. Asimismo, oferta una amplia cartera de servicios con atención sanitaria en consulta (médica, pediátrica y enfermería), control de patologías crónicas más prevalentes (hipertensión, diabetes y EPOC), cirugía menor, programa de la mujer (control de embarazo y planificación familiar), programa del niño sano, atención a personas incapacitadas y atención al alta hospitalaria.

Las obras tienen un plazo de ejecución de siete meses, y permitirán la creación de ocho nuevos puestos de trabajo y la conservación de otros 22, contribuyendo, por tanto, con 30 puestos de trabajo al fomento del empleo.

La Delegada del Gobierno andaluz en Málaga visita Pizarra para hacer balance de las obras del Plan Proteja






El viernes 20 de noviembre la Delegada del Gobierno andaluz en Málaga, María Gámez, ha visitado las obras del Plan Proteja que se están ejecutando actualmente en Pizarra junto al Alcalde del municipio Francisco Vargas y la Concejala de Urbanismo Isabel Lara Rojas.



Francisco Vargas mostró su satisfacción por la puesta en marcha de este Plan Proteja de la Junta de Andalucía, una muestra clara de la apuesta por el municipalismo y que contribuye a la reactivación del empleo y la economía local, nos sólo creando puestos directos de empleo sino también indirectos que repercuten en la economía del municipio.

Pizarra ha recibido durante este año 2009 unos de 503.000 euros que se han destinado a dos proyectos:

• Construcción de vestuarios deportivos el campo de fútbol municipal de Pizarra
• Reforma y ampliación de vestuarios y eliminación de barreras arquitectónicas en la piscina municipal

Se trata de dos equipamientos deportivos que redundan en la mejora de servicios a los vecinos y vecinas. Estas obras, unidas a las del Plan Zapatero (Plan E) han supuesto para Pizarra la mayor inversión de la historia.

María Gámez agradece la colaboración prestada por el Ayuntamiento de Pizarra para la realización de las obras del Plan Proteja y por la cesión de suelo público para la construcción de 16 viviendas de VPO en régimen de alquiler que están acabándose de construir en Zalea (Pizarra). “Ahora la colaboración entre ambas instituciones, Junta de Andalucía y Ayuntamiento, es total sin ninguna traga gracias a su actual alcalde Francisco Vargas”, manifestó Gámez.

El Plan Proteja tiene como pilar básico la confianza en los municipios, una clara apuesta del gobierno andaluz por el municipalismo, al ser el ayuntamiento la administración más cercana a los ciudadanos. La Junta de Andalucía es la única comunidad de España que complementa el Plan E del gobierno. Para el año 2010 se va a poner en marcha un Segundo Plan Proteja que destinará 4,3 millones de euros a 11 municipios del Guadalhorce para financiar nuevas obras que posibiliten la contratación de personas desempleadas y desarrolle la nueva economía sostenible que permitirá activar otros sectores productivos que no sean sólo construcción y turismo. A Pizarra le corresponderá unos 365.000 euros aproximadamente.

Publicado en DiarioLaTorre.es



La delegada del Gobierno ha visitado, entretanto, las obras que se están acometiendo actualmente en la localidad de Pizarra con cargo al plan Proteja de 2009 y que han generado un total de 122 puestos de trabajo -24 de nueva contratación, y una inversión superior al medio millón de euros.

En concreto, Gámez ha podido comprobar la marcha de las obras que se están realizando en la Piscina Municipal de Pizarra que se centran en la ampliación de los vestuarios y la supresión de barreras arquitectónicas; y también ha supervisado la construcción de los nuevos vestuarios que se están haciendo en el Campo de Fútbol de dicha localidad.

María Gámez ha destacado la colaboración institucional existente entre el Gobierno andaluz y los ayuntamientos de la provincia para desarrollar el Plan Proteja, colaboración que "se ha convertido en el mecanismo más eficaz para lograr mejoras destinadas a la ciudadanía".

Pizarra ya ha recibido 503.000 euros del Plan Proteja

María Gámez, delegada del Gobierno, visita las obras


Satisfacción, trabajo bien hecho. Son algunas de las palabras que han podido oírse durante la visita de la delegada del Gobierno andaluz en Málaga, María Gámez, a las obras acometidas en Pizarra merced a los fondos del Plan Proteja. Un instrumento que ha venido acompañado de 503.000 euros en inversiones y la dotación de nuevos equipamientos públicos.

Dos obras han concentrado el grueso de estas partidas: la construcción de los vestuarios deportivos del campo de fútbol municipal, y la reforma de los vestuarios y eliminación de barreras arquitectónicas en la piscina pública. ( Obras proyectadas y dirigidas por ARQUISURLAURO ). A ello hay que añadir la creación de 16 viviendas de VPO en la barriada de Zalea -gracias al suelo donado por el Ayuntamiento- y que podrían estar listas para principios de 2010.

Pero esto no quedará aquí ya que Gámez ha anunciado que en 2010 se pondrá en marcha el II Plan Proteja que destinará 4,3 millones a 11 municipios del Guadalhorce, recibiendo Pizarra 365.000 euros. “Hay una perfecta colaboración entre Junta y el Ayuntamiento gracias a su alcalde, Francisco Vargas”, destaca Gámez.

Publicado en http://www.malaga101.com


INFORME SOBRE EL FONDO ESTATAL DE INVERSIÓN LOCAL PARA EL EMPLEO Y LA SOSTENIBILIDAD 2010. PLAN E 2010

*ACTUALIZACIÓN.

Tal y como se publicó el viernes pasado, el Consejo de Ministros aprobó el EL FONDO ESTATAL DE INVERSIÓN LOCAL PARA EL EMPLEO Y LA SOSTENIBILIDAD 2010, lo que todos conocemos como el PLAN E 2010.

Los medio han dado buena cuenta de ello pero nosotros queremos acercaros el documento que ha dado pie al Decreto, ya que aun no se ha publicado el REAL DECRETO LEY por el que se crea el Fondo Estatal para el Empleo y la Sostenibilidad Local.

El informe realiza un balance global del anterior fondo estatal y traza los nuevos objetivos y como alcanzarlos para el año 2010.

Detalladamente el informe analiza los siguientes puntos:

1. INTRODUCCIÓN…………………………………………………….. 2
2. FONDO ESTATAL DE INVERSIÓN LOCAL COMO ANTECEDENTE 2
2.1. Balance Global …………………………………………………….. 3
2.1.a. Plena permeabilidad en toda España …………………… 3
2.1.b. Buen nivel de ejecución ………………………………….. 3
2.1.c. ¿Qué tipo de proyectos se están financiando? ………….. 4
2.1.d. Importante creación de empleo …………………………. 4
2.1.e. Apoyo a las PYMES …………………………………….… 4
2.1.f. Gran incidencia en el mercado del trabajo ……………… 5
2.2. Gestión. Un ejemplo de Administración electrónica …………… 5
3. EL FONDO DE INVERSION LOCAL PARA EL EMPLEO Y
LA SOSTENIBILIDAD (FILES) 2010……………………………….. 6
3.1. Tipología de proyectos…………………………………………….. 6
3.2. Requisitos …………………………………………………………. 8
3.3. Criterios de distribución de recursos …………….………………. 9
3.4. Implementación e instrumentación ……………………………… 9
3.5. Principios rectores de gestión ……………………………………. 11

Esperamos que sirva para tener el conocimiento y la crítica de primera mano!

DESCARGAR INFORME SOBRE EL FONDO ESTATAL DE INVERSIÓN LOCAL PARA EL EMPLEO Y LA SOSTENIBILIDAD 2010. PLAN E 2010

Hoy martes se ha publicado oficialmente en el Boe el Real Decreto-ley 13/2009, de 26 de octubre, por el que se crea el Fondo Estatal para el Empleo y la Sostenibilidad Local. Os adjuntamos el Decreto para tener la información mas completa:

DESCARGAR Real Decreto-ley 13/2009, de 26 de octubre, por el que se crea el Fondo Estatal para el Empleo y la Sostenibilidad Local

Comienzan las Obras de Vestuarios en el Campo de futbol municipal de Pizarra



Han empezado las obras de Vestuarios municipales
en el Campo de futbol municipal de Pizarra.
Estas obras se engloban dentro del Plan Proteja de
Fomento del empleo de la Junta de Andalucía y prevé
la construcción de 4 vestuarios y zona de almacén.


cimentacion profunda en centro de dia en pizarra

Ya en su dia se ejecutó la primera separata del Centro de dia de Pizarra consistente basicamente en la cimentación profunda mediante pilotes de hinca y muros de contención.
Ahora se esta ejecutando la segunda separata.

Comienzan las Obras de los Vestuarios en la Piscina Municipal de Pizarra



Se procede al Vallado perimetral de los
vestuarios preexistentes para comenzar
con los trabajos de demolición.



Planta de los vestuarios en el estado reformado.

Este proyecto se engloba dentro del Plan PROTEJA
de la JUNTA DE ANDALUCIA para la protección
del Empleo.

Proyecto de Instalación de Ascensor en la Sede Judicial de Archidona



Se aprovecha uno de los patios para la instalación del
ascensor y la eliminación de barreras arquitectónicas.
Se reforma también el baño público existente
adaptandolo al uso de minusválidos.



Comienzan las Obras de la Ampliación del Centro de Salud de Pizarra con un Nuevo Área de Urgencias y Dependencias municipales



Comienzan las obras de la Ampliación del Centro de
Salud de Pizarra con una Nueva Área de Urgencias en
planta Baja y con dependencias municipales en la planta
Primera.



Este proyecto realizado por ARQUISURLAURO S.L.P.
se acoge al Plan FEIL ( Fondo Estatal de Inversiones Locales )
para la creación de empleo realizado por el Gobierno Central.



Las obras han sido adjudicadas a la Constructora INGECONSER.

Finalizadas las Obras de la Guardería Municipal en Zalea esta cumple ya el primer año de funcionamiento.



Vista de un aula.


Vista de las aulas


Vista de una de las aulas



Vista de los aseos con los inodoros infantiles.




Alzados exteriores.



Alzados exteriores.

Obra de Reforma y Ampliacíón de Centro de Menores Infractores San Francisco de Asis en Torremolinos


Se trata de la reforma y ampliación en altura del vallado perimetral
existente en el Centro de Menores Infractores.



Por el mal estado estructural de parte del cerramiento se decide la demolición
y sustitución de gran parte del vallado perimentral por el cerramiento
que aparece en las fotos ejecutado mediante perfiles metálicos y placas alveolares
sobre el que se coloca una malla electrosoldada de la casa "Securifor".



Vista de la malla sobre el cerramiento reformado.



El cerramiento antiguo en gran parte de su longtud tuvo
que someterse a un recalce en la cimentación.

Firma del contrato para las obras del Centro de Dia de Pizarra

Hoy jueves 28 de mayo de 2009 se ha firmado el contrato con la empresa adjudicataria (Hermanos Campano S.L.) para la ejecución de la segunda separata del proyecto de ejecución de la primera fase del Centro de Estancia Diurna y Viviendas Tuteladas de Pizarra. Estas obras permitirán acabar la estructura, cubierta y parte de albañilería.
La adjudicación definitiva a esta empresa ha sido por un importe de 352.334,57 euros más IVA con un plazo de ejecución de 5 meses.
El Centro de Estancia Diurna de Pizarra está ubicado en la urbanización del Olivar, junto a la Plaza Carlos Cano. En estos momentos tiene ejecutada parte de la primera fase de construcción de la estructura del inmueble. Las siguientes fases consistirán en acabar la albañilería y realizar las ayudas de oficios (fontanería, electricidad, climatización, ascensor, carpintería, ...) y la urbanización de los exteriores.
Un Centro de Estancia Diurna es un recurso con carácter preventivo y rehabilitador, con el objetivo de mejorar la calidad de vida alcanzando la mayor autonomía posible, sin renunciar a su modo de vida habitual al continuar en su domicilio.
Este centro tiene una capacidad para 30 personas y prestaría los servicios de ayuda a domicilio, lavandería, cocina, podología, fisioterapia, talleres, actividades de ocio, socioculturales y de entretenimiento, etc. Con el equipamiento adecuado para que las personas puedan dejar a sus mayores en este centro y vuelvan a casa por la noche permitiendo así que los vecinos y vecinas de Pizarra puedan conciliar la vida personal y laboral y poder tomarse un respiro.
Toda la información acerca de este expediente se puede consultar en el Perfil del Contratante dentro de la web del Ayuntamiento de Pizarra (www.pizarra.es) y de la Plataforma de Contratación del Estado (www.contrataciondelestado.es).

Abre la tercera guardería pública de Pizarra, que tiene 35 plazas

Publicado en Málaga Hoy

El edificio está ubicado en Cerralba y ha supuesto una inversión de 125.000 euros

M. Herreros / Pizarra | Actualizado 14.05.2009 - 05:01

El municipio de Pizarra sigue ampliando la oferta de plazas de guardería en dicha localidad. Esta semana ha entrado en funcionamiento la tercera guardería pública con la que cuenta la localidad y que está emplazada en la pedanía de Cerralba.

El nuevo centro cuenta con 35 plazas que, unidas a las 35 de Zalea y 61 de Pizarra suman un total de 131 plazas situando la localidad entre los municipios del Valle del Guadalhorce con mayor oferta de plazas de guardería en la actualidad.

El nuevo edificio de la Guardería de Cerralba cuenta con una superficie de 200 metros cuadrados construidos y ha supuesto una inversión de 76.025 euros a lo que se suman 48.927 euros del coste en mobiliario, por lo que el presupuesto total ha sido de casi 125.000 euros, subvencionado por la Consejería para la Igualdad y Bienestar Social de la Junta de Andalucía.

Por su parte, el alcalde de la localidad de Pizarra, Francisco Vargas (PSOE), señaló que se pone en funcionamiento "un edificio moderno, dotado de mobiliario de última generación que cumple al máximo con la seguridad de los niños que disfrutarán de él".

Pizarra incrementa en un 36% sus plazas públicas de guardería con la construcción de un nuevo centro

La escuela, que es la tercera del municipio y que se inaugura la próxima semana, se ubica en el núcleo de Zalea y tiene capacidad para 35 niños

06.09.08 -

Pizarra incrementa en un 36% sus plazas públicas de guardería con la construcción de un nuevo centro
OBRAS. La guardería de Zalea se terminó este verano. / J. J. B.
El incesante crecimiento poblacional experimentado por Pizarra en los últimos años ha obligado a incrementar las plazas de educación infantil con la construcción de una nueva guardería municipal que echará a andar la próxima semana. Será el martes cuando el presidente de la Diputación Provincial, Salvador Pendón, y el alcalde pizarreño, Francisco Vargas, inauguren la que se convertirá en la tercera guardería pública del municipio.

El centro se emplaza en la barriada de Zalea y podrá acoger a un total de 35 niños, lo que supone un incremento del 36% de plazas de educación infantil en la localidad. En concreto, Pizarra pasará a contar ahora con tres guarderías que suman 131 plazas: 61 en el casco urbano, 35 en Cerralba y otras 35 en Zalea. Esta última está dividida en dos aulas, una para bebés y otra para niños de entre 1 y 3 años.

Además, el edificio dispondrá de un aula-comedor, área de administración y un patio con cerca de 200 metros cuadrados. Fuentes del Consistorio señalaron que para principios del año que viene se espera inaugurar la nueva guardería del núcleo de Cerralba, donde actualmente se imparte el servicio en unas instalaciones provisionales. Las nuevas dependencias no supondrán de inicio un incremento de las plazas, que sí podría darse a principios del curso que viene.

Contrato adjudicado

Precisamente el Ayuntamiento adjudicó recientemente la gestión del servicio de las tres guarderías después de convocar un concurso público con un contrato valorado en 1,1 millones de euros. La concesión de cada uno de los centros ha recaído en diferentes profesionales que se encargarán del servicio durante un periodo de cinco años prorrogables por dos años más.

La concejala de Educación y Cultura, Ana Belén González, visitó el pasado lunes las instalaciones de Pizarra y Cerralba e informó de los cambios que se habían llevado a cabo en el mobiliario de estos centros para mejorar la seguridad de los niños. González también se mostró confiada en que la barriada de Cerralba pueda estrenar el nuevo edificio de la guardería a principios de 2009.

Pizarra estrena su tercera escuela infantil, situada en Cerralba

Publicado en
Diario Sur

El centro, con capacidad para 35 niños, ha supuesto una inversión de 125.000 euros
12.05.09 -
J. J. BUIZA
| PIZARRA

Mientras muchos municipios de la comarca carecen todavía de una guardería municipal, Pizarra estrenó ayer su tercer centro de estas características, ubicado en la pedanía de Cerralba. Se trata de una escuela infantil con 35 plazas que se suman a las otras 35 de la guardería de Zalea y a las 61 del casco urbano de Pizarra, de manera que el municipio cuenta con un total de 131 plazas públicas para niños de hasta tres años de edad. Al acto de puesta en funcionamiento asistieron ayer la delegada provincial de la Consejería de Bienestar Social de la Junta de Andalucía, Amparo Bilbao; la parlamentaria andaluza del PSOE, Marisa Bustinduy; y el alcalde pizarreño, Francisco Vargas.
El edificio en cuestión, que es de titularidad del Ayuntamiento y que ha venido a sustituir a unas dependencias provisionales donde se venían prestando este servicio, ha supuesto una inversión de 125.000 euros, incluyendo el equipamiento. Para ello, se ha contado con una subvención de la propia Consejería de Bienestar Social. Las instalaciones incluyen un aula, una oficina de secretaría-dirección, distribuidor, cuarto de limpieza, cocina, sala de usos múltiples, dos aseos infantiles, un aseo para adultos y un patio con una zona de juegos infantiles.

cimentacion profunda en centro de dia en pizarra

En la Ejecución de la 1a Separata del Futuro Centro de día de Pizarra, la cimentación se ejecutó mediante pilotes de hinca.

Reparto de Proyectos de Rehabilitación Autonómica del año 2007 en Alora

El 29 de Abril se firmaron las subvenciones para los proyectos de las obras de rehabilitación autonómica de viviendas 2007






Los arquitectos contratados por la junta de Andalucía, Arquisurlauro s.l.p., explicaron a los 23 beneficiarios de estas subvenciones en qué consistirán las rehabilitaciones que se llevarán a cabo en sus viviendas previo estudio de los diferentes casos.



La arquitecta Bella Valiente explica a uno de los Beneficiarios del Programa
de Rehabilitación soluciones constructivas aplicadas en su vivienda.

Centro de atencion a personas con necesidades especiales

Arquisurlauro ha proyectado y esta dirigiendo las obras del Futuro Centro Municipal de

Atención a personas con necesidades especiales.


Inaugurada la guardería de Zalea

El presidente de la Diputación Provincial, Salvador Pendón, y el alcalde de Pizarra, Francisco Vargas, inauguraron en la tarde del martes la guardería que se ha construido en la pedanía de Zalea y que ha supuesto una inversión de 220.000 euros. Se trata de la tercera guardería municipal de Pizarra y cuenta con dos aulas para acoger a 35 niños de hasta 3 años de edad.
/ J. J. B.




ACTO. Pendón y Vargas visitaron el centro en compañía de los concejales. / J. J. B.

Publicado en

Inaugurada la Guardería de Zalea en Pizarra


El alcalde de Pizarra y el presidente de la Diputación inauguraron el edificio que tiene dos aulas y ha costado 200.000 euros.


El martes 9 de septiembre tuvo lugar el acto de inauguración de la Guardería de Zalea a las 19:00 horas, en las instalaciones de la misma. A ella, asistió el presidente de la Excelentísima Diputación de Málaga; Salvador Pendón, que estuvo acompañado en todo momento por el alcalde de la localidad; Francisco Vargas y las concejalas de Urbanismo y Educación y Cultura; Isabel Lara y Ana Belén González, respectivamente.

La Guardería de Zalea, es de nueva construcción y está totalmente equipada para que los niños/as puedan estar bien atendidos durante todo el período escolar. Las instalaciones cuentan con dos aulas: una de bebes y otra para niños de entre 1 y 3 años, que es de usos múltiples, puesto que es un aula-comedor. También cuenta con un despacho, un cuarto de limpieza-lavadero, dependencias para los monitores y respectivos servicios en cada una de las aulas. El patio cuenta con unos 92 metros cuadrados de patio blando y con unos 119 metros cuadrados de patio duro.

Esta guardería se trata de la primera guardería que se construye y se abre en Zalea, para que los niños/as de esta pedanía no tengan que desplazarse más a la guardería de Pizarra, como lo estaban haciendo hasta el momento. En ella se ofrecerán todos los servicios: aula matinal, comedor y en caso de que hubiera la demanda correspondiente, se ofrecería también el servicio de ludoteca.

Cuenta también, con una amplia zona de juegos y está situada en una zona céntrica de la barrida, justo detrás del edificio Social. Zalea se encuentra a unos escasos 5 minutos del núcleo municipal de Pizarra, lo que significa que en un ratio de 5 kilómetros contaremos con 3 guarderías muy próximas entre sí, ofreciendo todas ellas un buen servicio educativo, del cuál se benefician todos los vecinos/as del municipio.

A lo largo de este mismo curso escolar, está prevista la apertura e inauguración de la guardería de Cerralba, pedanía en la que desde el pasado lunes 1 de septiembre, se ofrece el servicio de guardería en unas instalaciones provisionales.

Tras publicarse las bases del concurso para la adjudicación del servicio de guardería en Zalea, ésta fue adjudicada a Gema Ortuño, que junto con otras dos chicas van a ser las encargadas del servicio de guardería durante todo este curso escolar.

El presidente de la Diputación, en su exposición destacó que “es un orgullo inaugurar un equipamiento que está destinado a asistir a los más sensibles de la ciudadanía, los pequeños”. Además apuntó que con este nuevo servicio se consiguen dos importantes retos: “en primer lugar, que los niños crezcan aprendiendo los valores de la convivencia, y, en segundo lugar, que sus madres puedan compatibilizar la vida laboral con la personal”.

Por su parte, el alcalde afirmó que la nueva guardería, “Pitufos 2”; nombre con el cuál se ha llamado a la nueva guardería, es una puesta importante por el desarrollo de Zalea y significa la descentralización de algunos de los servicios ofrecidos por el Ayuntamiento de Pizarra. Por otro lado, resaltó que es un edificio moderno, amplio y equipado para satisfacer todas aquellas necesidades de los niños y niñas de dicha pedanía.

Tras realizar dichas declaraciones, las autoridades se dirigieron al interior del nuevo recinto donde se procedió al descubrimiento de la placa que da nombre a la nueva guardería. Tras este momento, se realizó una visita a todas y cada una de las instalaciones de la guardería y se prosiguió a la toma de un pequeño aperitivo para celebrar tan memorable acto.

La nueva Guardería ha contado con una inversión de unos 220.000 euros.

El Ayuntamiento de Pizarra se encuentra plenamente satisfecho con el trabajo que se ha llevado a cabo, tanto en el área de Urbanismo, con el seguimiento detenido del proceso de obra, como en el área de Educación y Cultura, con el seguimiento en la compra del mobiliario, adjudicaciones en el servicio de guardería y demás asuntos que hayan tenido que ser tratados.

Publicado en

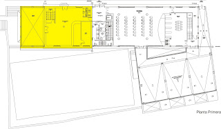
Arquisurlauro proyecta la amplicación del Centro Social y del Colegio del Romeral.



Planta baja
En amarillo se denota el edificio pre-existente
siendo el resto el edificio proyectado por Arquisurlauro.



Planta Primera. Igualmente se ha señalado en
amarillo el edificio pre-existente.

Conjunto edificado.

Arquisurlauro proyecta el Centro de Formación Ocupacional en Pizarra.


Planta general del ambicioso conjunto proyectado.
En amarillo la fase que se encuentra ahora en ejecución.



Perspectiva General del Conjunto edificatorio.

Vista del Edificio de Aulas y talleres.

Vista de las Instalaciones deportivas previstas.

Se trata de un ambicioso proyecto para dar respuesta
a las necesidades culturales, de formación y deportivas
de la juventud pizarreña.
En la actualidad solo se ha desarrollado la primera
fase marcada en la planta general en amarillo
destinada a Escuela Taller.

Arquisurlauro proyecta la Guardería Municipal en Zalea


Planta de la Guardería municipal de Zalea, diseñada por
Arquisurlauro.



Alzado diseñado por Arquisurlauro para la Guardería
Municipal de Zalea.



Axonometría en la que se observa el juego de Volumenes.

La necesidad de la guardería surge por el crecimiento demográfico
de la pedanía de Zalea. Se pretende un juego de volumenes claros
de diferentes colores que reconozcan los niños y los mayores
como un edificio de uso infantil y que lo haga singular en el entorno.